Výhody montovaného domčeka GARDEON
- Bez komplikovanej výstavby a náročných základov
- Do 50 m² bez stavebného povolenia
- Nadštandardná výška stavby 2,8 m
- Rýchla montáž už za 1 deň
- Bez nutnosti natírání i po letech
- Dlhá životnosť bez kompromisov
Montované domčeky GARDEON v štýle Tiny House síce nemajú vlastný podvozok a nedajú sa prevážať ako typické mobilné domy, no ponúkajú rovnakú výhodu: rýchle a komfortné riešenie bez zložitej výstavby a bez náročných základov, ideálne pre rekreačné bývanie, záhradný office, predajný stánok či iné využitie podľa vašich potrieb.
Pri ploche do 50 m² ich navyše môžete postaviť aj bez stavebného povolenia.
* Vnútorné priečky, interiérové dvere a vnútorné vybavenie nie sú súčasťou cenovej ponuky.
Mobilný domček zrealizujem rýchlo (za jeden deň), bez neporiadku a pre vás bez starostí.
Jadro má najvyššiu triedu reakcie na oheň pre organické izolácie.
GARDEON® Thermopanel 60 mm s vynikajúcimi tepelnoizolačnými vlastnosťami vo svojej triede.

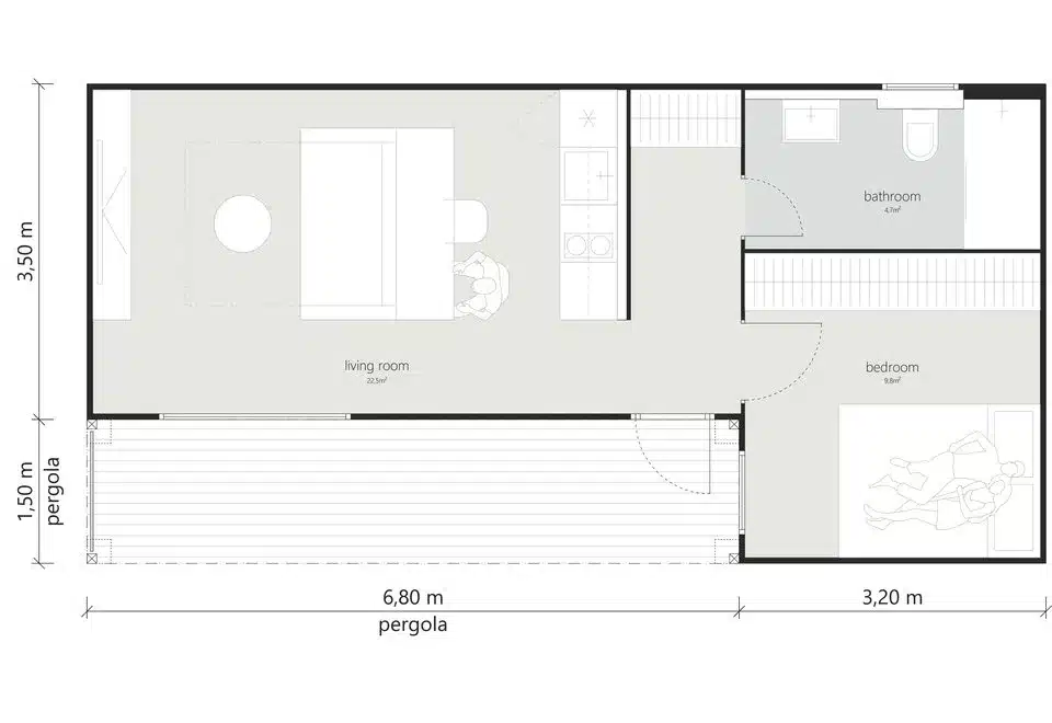
Zobrazený pôdorys slúži iba pre predstavu o dispozičnom riešení a možnom vybavení domčeka.

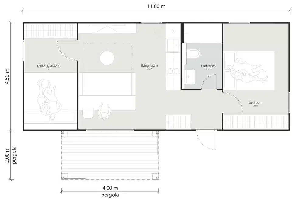
Zobrazený pôdorys slúži iba pre predstavu o dispozičnom riešení a možnom vybavení domčeka.

Výroba Tiny Houses GARDEON je založená na sendvičových paneloch s integrovanou tepelnou izoláciou, ktoré majú oproti našim bežným Thermopanelom o tretinu hrubšiu tepelnú izoláciu (hrúbka panelu je tu 60 mm oproti štandardným 40 mm). Tým sa dosahujú:
Súčasťou montovaného víkendového domčeka môže byť aj prístrešok, ktorý sa dá využívať napríklad:

Zobrazený pôdorys slúži iba pre predstavu o dispozičnom riešení a možnom vybavení domčeka.

Systém našich mobilných domčekov je navrhnutý tak, aby umožňoval veľmi jednoducho zrealizovať priestor vhodný na víkendové alebo prázdninové bývanie – či už chatu, alebo záhradnú chatku s možnosťou príležitostného prespania.
* Vnútorné priečky a interiérové dvere nie sú súčasťou cenovej ponuky.

Zobrazený pôdorys slúži iba pre predstavu o dispozičnom riešení a možnom vybavení domčeka.

Zobrazený pôdorys slúži iba pre predstavu o dispozičnom riešení a možnom vybavení domčeka.
Steny aj strechu našich mobilných domčekov tvoria plošné panely s hotovou povrchovou úpravou (omietkou alebo náterom) a integrovanou tepelnou izoláciou. Ich opláštenie je z pozinkovaného oceľového plechu a izolačné jadro z polyizokyanurátovej (PIR) peny.
Stenové panely s hrúbkou 60 mm
Zväčšenie hrúbky zo 40 mm na 60 mm prináša výrazne lepšie tepelnoizolačné vlastnosti pri minimálnom náraste hmotnosti. Ide o najefektívnejší krok k energeticky úspornej stavbe.
Porovnanie s murivom z pórobetónu (hr. 350 mm):
Strešné panely s hrúbkou 60 mm
Sendvičový strešný panel s trapézovou profiláciou a jadrom z PIR peny spája v jednom celku nosnú vrstvu, tepelnú izoláciu, hydroizoláciu a krytinu.
Kľúčové vlastnosti:
Voliteľný variant – strešné panely QuadCore®


Neviete sa rozhodnúť? Napíšte nám na email info@gardeon.sk alebo zatelefonujte na našu infolinku +421 43 455 53 33 a my vám radi poradíme s výberom.